“安全阀”检测造假?这可使不得!
液化气船货舱压力释放阀是保障船舶及货物安全的重要设备,起到保护货物系统免受超压损坏的作用。2024年4月,交通运输部海事局部署开展船舶载运危险货物安全专项整治工作,方案中明确要求加强对安全阀等重要设备的检查。
近期,海事执法人员查处了一起液化气船货舱压力释放阀检测造假行为,避免了由此产生的事故隐患,希望引起航运公司及船舶的警觉和重视,举一反三,加强隐患自查自纠。
案 件 概 况

2024年6月,东营海事局执法人员对“XX02号”轮实施监督检查,在检查液货舱压力释放阀时,发现4份校验报告中的“整定压力”均为1.75兆帕,“密封压力”均为1.58兆帕,校验方式均为“离线检验”。执法人员对在航期间“离线检验”、“整定压力”“密封压力”数值高度一致等问题提出质疑。经调查,该轮承认并未实际开展校验,存在造假行为。此外,该轮还存在多项安检严重缺陷,被海事管理机构依法滞留。
被查处后,该轮由所属航运公司安排进坞,严格按照程序开展了液货舱压力释放阀检验,并由船检机构认可、具备相应资质的安全阀检验机构重新出具了校验报告。
船名 | XX02号 | 船舶类型 | 液化气船 |
总吨 | 4614 | 船舶长度 | 102米 |
龙骨安放日期 | 2010/12/21 | 载运货物 | 戊烷 2890吨 |

案 例 分 析


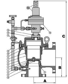
压力释放阀通常分为先导式和弹簧式两种。根据《国际散装运输液化气体船舶构造和设备规则》(IGC)第8章要求,对于容积超过20立方米的每个液货舱,至少应设置2个排量大致相等的压力释放阀,其设计和结构应与规定用途相适合。通常压力释放阀的调定压力(整定压力)不得大于设计该液货舱时所采用的最大蒸气压力。每个压力释放阀须经试验以确保能够在规定的调定压力下能开启。压力释放阀须由主管机关或代表主管机关的被认可组织进行调定和铅封,此项工作的记录,包括阀的调定压力,须被保存在船上。
本案中,由于开展压力释放阀检测通常需要船舶进坞并对货舱进行惰气置换,时间和费用成本较高,“XX02”号轮最终试图用虚假检测报告应付检查,属于“自欺欺人”。如果货舱压力释放阀检测不规范,不仅难以及时发现阀门存在的问题缺陷,还将影响阀门压力设定的准确性,造成起跳压力与货物特性不匹配。如起跳压力偏高,则难以及时释放货物操作、外界环境影响等产生的超压,很可能导致货物系统损坏、液化气事故性泄漏;如起跳压力偏低,则可能导致阀门非正常起跳,在损失货物的同时,还可能因气体膨胀吸热导致阀门结冰,影响其有效关闭。
2019年,液化气船“汽船X号”因货舱压力释放阀意外起跳,造成丙烯泄漏险情。事后调查和检修发现,该压力释放阀的先导阀弹簧断裂(如下图),导致阀门在低于设定压力时起跳且无法正常复位,是导致丙烯泄漏的直接原因。同时,也发现该阀历史检测报告存在数据雷同、“密封压力”不符合要求等问题,反映出阀门检测不规范。

断裂的弹簧
安 全 管 理 建 议
01 压力释放阀结构精细,活动部件多,且长期处于高压液化气的影响下,船舶应特别注意加强维护保养,合理安排运营和检修,严格按照有关技术标准和规范开展检测,切勿存有侥幸心理,试图蒙混过关。同时,在日常运营中,也应根据有关安全技术规则和船舶适装证书,按照所载运液化气货物的最大压力,合理调定货舱压力释放阀。
02 航运公司应“以案为鉴”,切实加强液化气船管理及岸基支持,适当增加公司管理人员登轮检查频次,重点对液货承压系统、压力释放阀、灭火系统、应急切断装置(ESD)等开展检查,并定期对船员开展安全教育和关键设备操作培训,提升船员安全意识和技能,督促船员强化设备巡检,关注船舶货物围护系统、透气系统、货物管线、取样装置、管汇区域等重要设备状况。